貸店舗・事務所(一部) 牛久駅前ビル 102
| 賃料 | 16.5401万円 | 管理費等 | なし | ||
|---|---|---|---|---|---|
| 敷金 / 保証金 | 3ヶ月/なし | 礼金 | なし | ||
| 交通 | JR常磐線 / 牛久駅 徒歩1分 | ||||
| 所在地 | 茨城県牛久市中央5丁目 | ||||
| 築年月 | 1989年12月(築36年3ヶ月) | 使用部分面積 | 58.49㎡ | 坪数
/坪 単価 |
17.69坪/0.9349万円 |
- 1階
- 2階以上
- 飲食店可
- 即引渡し可
- 居抜き
- 24時間利用可
- 駐車場(近隣含む)
- エアコン
- 男女別トイレ
- エレベーター
物件詳細情報
| 交通 | JR常磐線 / 牛久駅 徒歩1分 | ||
|---|---|---|---|
| その他交通 | - | ||
| 所在地 | 茨城県牛久市中央5丁目 | ||
| 物件種目 | 貸店舗・事務所(一部) | ||
| 賃料 | 16.5401万円 | 管理費等 | なし |
|---|---|---|---|
| 敷金/保証金 | 3ヶ月/なし | 礼金 | なし |
| 敷引 | - | 保証金償却 | - |
| その他一時金 | - | 造作譲渡 | - |
| 維持費等 | - | 保険等 | - |
| 権利金 | - | 坪単価 | 0.9349万円 |
| 建物名・部屋番号 | 牛久駅前ビル 102 | ||
|---|---|---|---|
| 特記事項 | フリーレント | ||
| 設備 | エレベーター | ||
| 備考 | フリーレント:6ヶ月 | ||
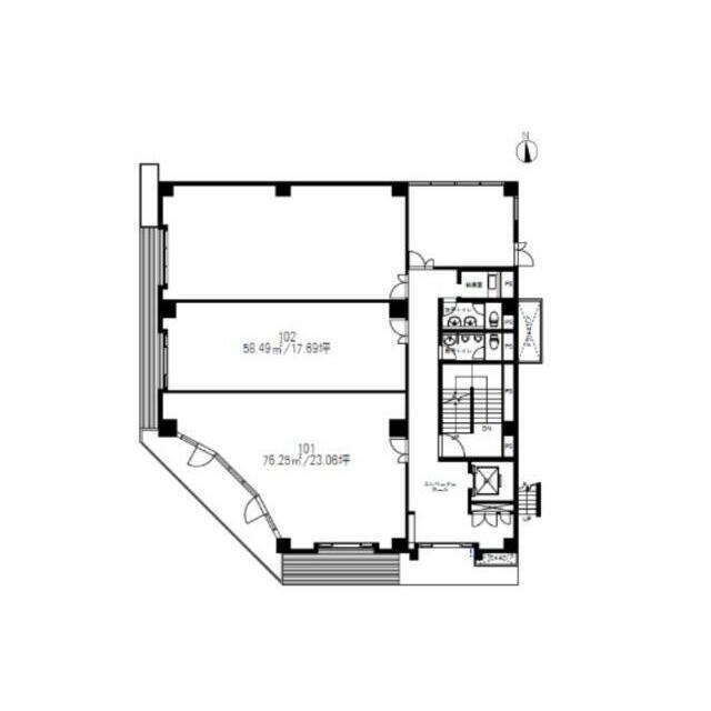
| 使用部分面積 | 58.49㎡ | 坪数 | 17.69坪 |
|---|---|---|---|
| 土地面積 | - | 築年月 | 1989年12月(築36年3ヶ月) |
| 建階/ 階 | 地上6階地下1階建/1階 | 建物構造 | SRC |
| 駐車場 | なし | バイク置き場 | なし |
| 駐輪場 | 有 | 接道状況 | - |
| 用途地域 | - | 間取り | - |
| 契約期間 | 2年 | 現況 | 使用中 |
|---|---|---|---|
| 条件等 | - | 引渡可能時期 | 相談 |
| 更新料 | - | ||
| 物件番号 | 1148127913 | ||
| 情報公開日 | 2025/10/15 | 次回更新予定日 | 2026/02/18 |
※「-」と表示されている項目については、情報提供会社にご確認ください。
情報提供会社
(有)トキワ企画
- 交通:
- JR常磐線/藤代 徒歩6分
- 住所:
- 茨城県取手市藤代南1丁目9-3
- TEL:
- 0297-83-3116
- FAX:
- 0297-83-3867
- 所属団体など:
(公社)茨城県宅地建物取引業協会会員 (公社)首都圏不動産公正取引協議会加盟 - 取引態様:
- 仲介
- 免許番号:
- 茨城県知事免許(10)第3373号
- 間取図は、現況を優先させていただきます。
- 映像は物件の一部を撮影したものです。物件の契約にあたっての最終判断はご自身の判断に基づいて行ってください。
-
仲介手数料について
仲介手数料とは 貸主と借主の契約の仲立ちを行う不動産会社に支払う報酬です。宅地建物取引業法等(法第46条・建設省告示第1552号他)により取引態様ごとに受け取ることのできる報酬の上限額が定められています。
取引態様が「貸主」の場合は不要です。
「仲介」の場合、居住用の物件は月額賃料の0.55ヶ月分の範囲内とされています。なお、物件によって、月額賃料の1.1ヶ月分を上限とした範囲内で必要となる場合があります。
「代理」の場合、月額賃料の1.1ヶ月分の範囲内とされています。
※宅地または居住用以外の建物で権利金がある物件に関しては、権利金の額を売買代金の額とみなして算出される場合があります。
権利金を以下のように区分し、それぞれ定められた割合を乗じて得た金額の合計額が上限となります。
(賃貸借に係る消費税額を除外した額)200万円以下の金額 5.5% 200万円を超え400万円以下の金額 4.4% 400万円を超える金額 3.3%
物件によって金額が異なります。
お問い合わせの際は十分ご確認ください。 - 消費税について
当サイトの課税対象となる物件価格およびその他費用等は、税込み表示となっております(100円未満は切上げ)。
詳しくは、当社までお問い合わせください。
